+36 (70) 617 5282

Miskolc - Eladó Lakás

Elhelyezkedés
Belváros, Rák utca
Alapterület
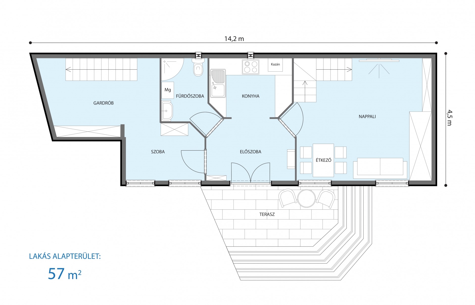
57 m2
Ár
44.900.000 Ft
Hirdetés azonosító
350648

Belvárosi, galériás lakás

Leírás

Eladó Miskolc belvárosában egy földszinti, 57 nm-es, 2 szoba+2 galériás lakás a Rákóczi utcában. A tárgyi ingatlan 2025-ben felújításon esett át, mely magában foglalja a szigetelést, nyílászárók cseréjét (Műa.), külső, belső falak festését, zuhany újra építését, továbbá 2017-ben a gázkazán és villanyhálózat is felújításra került. A fűtést inverteres klíma vagy kombi gázkazán biztosítja, radiátor hőleadókkal. A környék biztonságos, az udvar zárható, belső parkolóval rendelkezik, az épület külső homlokzata is 2 éven belül került felújításra.

Helyiséglista:
2 szoba, 2 háló galéria, fürdőszoba, előszoba, konyha

Extra:
bútorok, inverteres klímák, saját tároló, belső udvari parkoló

Lehetőség:
A lakás azonnal üzemkész, így alaklamas rövid vagy hosszú távú bérbeadásra is.
Becsült hozam: 5,34%/év
Idális olyan családok részére, akik a belvárosi pezsgés, Borangolás közelségére vágynak.

Ár: 44.900.000 Ft
Hitel esetén, irodánk stábja foglalógaranciát biztosít.

Az ingatlan elhelyezkedése

Kapcsolati adatok

Érdeklődjön az ingatlanról, e-mailben!

Hasonló ingatlanok

Hívás