+36 (70) 617 5282

Miskolc - Eladó Lakás

Elhelyezkedés
Bábonyibérc, Százszorszép utca
Alapterület
144 m2
Ár
215.000.000 Ft
Hirdetés azonosító
351913

Leírás

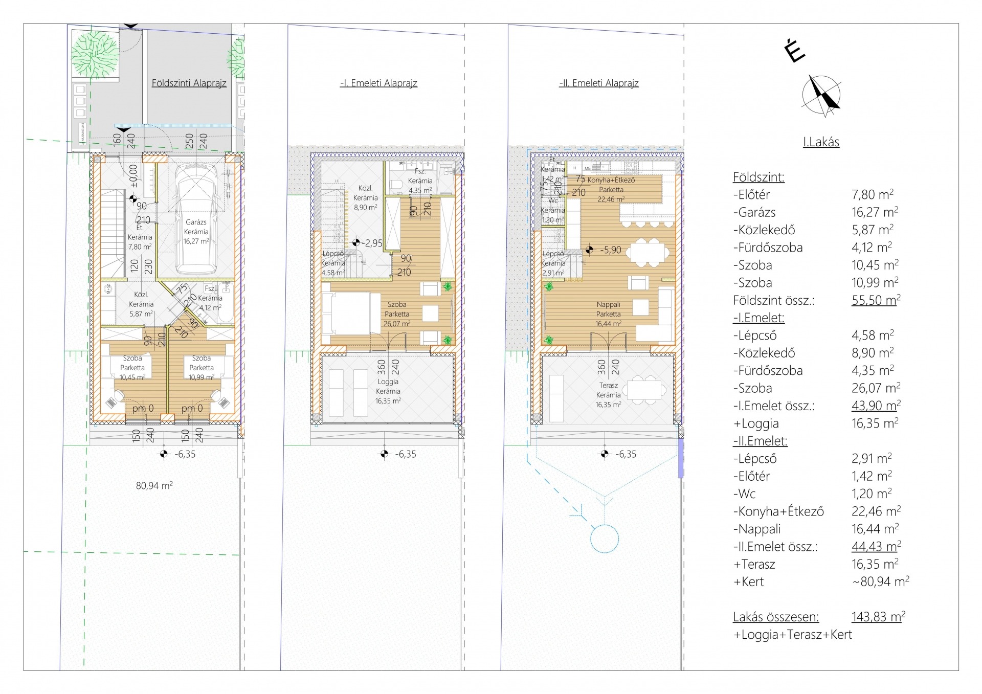
Eladó Miskolc bábonybérci városrészén egy 3 szintes, 144 nm-es, 2+2 szobás, luxus társasházi lakás. A tárgyi ingatlan tervezett építése 2026 áprilisában kezdődik, melynek várható átadása 2027 május lesz.
A 4 lakásos társasház sorház jelleggel készül, egyenként 144 nm alapterülttel, önálló garázzsal és 81 nm kertkpacsolattal.

Helyiséglista:
FÖLDSZINT (55,5nm): 2 szoba, fürdőszoba, közlekedő, előtér, garázs
1. EMELET (43,9nm): szobba, fürdőszoba, közlekedő, loggia: 16,35 nm
2. EMELET ( 44,43nm): nappali, konyha+étkező, WC, előtér, terasz: 16,35 nm

Műszaki leírás:
közművek: víz, áram, szennyvíz
alapozás: sávalapozás
falszerkezet: porotherm klíma 30
födém: monolit vasbeton, záró: fagerendás
tetőfedés: ANTRACIT színű korcolt lemez fedés
nyílászárók: műanyag szerkezetű, 3 rétegű, argongáz töltetű, U=1,1 W/m2K
fűtés/hűtés: levegő-víz hőszivattyú,
napelem: 10 Kw, szigetüzemmóddal, elektromosautó töltővel
burkolat: prémium,- olasz járólapok, lamináált padló, padlószőnyeg
extra: gépesített konyha

Környezet:
Zöld, családi házas övezet, mely aszfalt úton megközelíthető. A belváros autóval 5 perc, gyalogosan 30 perc közelségben. 1,7 km-en belül, Penny, iskola, óvoda is elérhető.

Ajánlott:
Mindazok részére, akik kompromisszum mentesen szeretnék élvezni egy lakás vagy egy családi ház előnyeit.

A hirdetés folyamatosan frissül, így érdemes figyelemmel kisíérni a projektet!

Hitel, támogatás ügyintézésében díjmentesen segítünk.

Az ingatlan elhelyezkedése

Kapcsolati adatok

Érdeklődjön az ingatlanról, e-mailben!

Hasonló ingatlanok

Hívás